
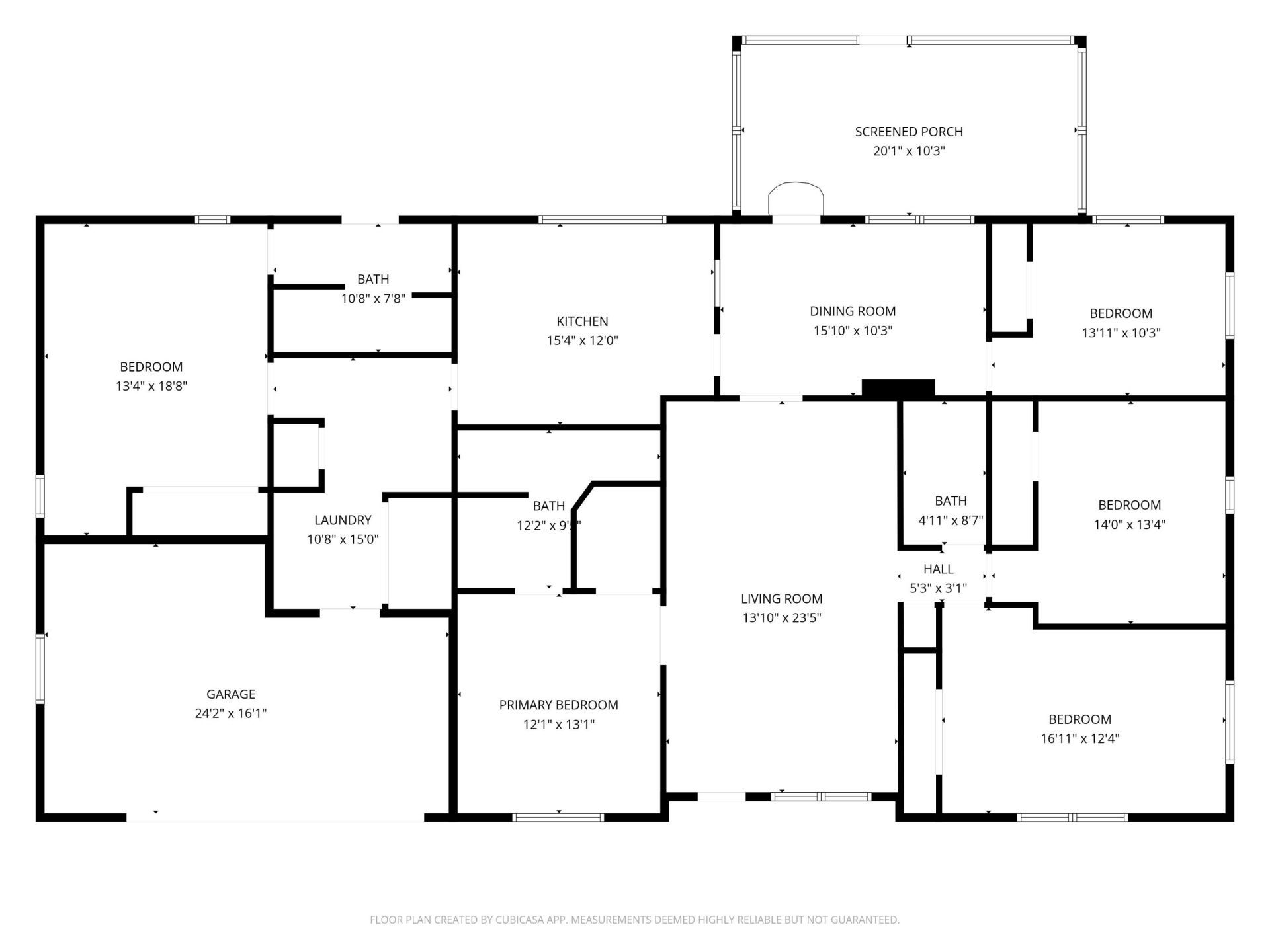
This Jupiter home distinguishes itself through the improvements that matter most -- the significant, high-cost upgrades that are often overlooked or deferred, yet provide lasting value and peace of mind. A brand-new roof (2026, just completed),flat roof (2025), hot water heater (2024), updated electrical panel (2022) with sub-panel (2018), irrigation system (2022), and full impact windows and doors represent substantial investments already completed, allowing the next owner to focus on enjoying ...This Jupiter home distinguishes itself through the improvements that matter most -- the significant, high-cost upgrades that are often overlooked or deferred, yet provide lasting value and peace of mind. A brand-new roof (2026, just completed),flat roof (2025), hot water heater (2024), updated electrical panel (2022) with sub-panel (2018), irrigation system (2022), and full impact windows and doors represent substantial investments already completed, allowing the next owner to focus on enjoying the home rather than planning major capital expenses. Offering 2,652 square feet of living space, this five-bedroom, three-bath residence is thoughtfully designed for flexibility and function, featuring two primary suites ideal for multi-generational living, guests, or home-office needs. The original garage was intentionally converted into an additional primary suite and laundry room, enhancing the home's livability, while still preserving a 1.5-car garage for traditional parking and storage. The kitchen has been updated with wood shaker cabinetry, granite countertops, and stainless-steel appliances, and the home is set on a fully fenced one-third acre lot with a detached shed with electric, perfect for tools, hobbies, or additional storage. Adding to the appeal, the Town of Jupiter has buried the electrical lines, improving both reliability and neighborhood aesthetics. Ideally located less than three miles from Jupiter Beach, this property offers a rare combination of thoughtful ownership, meaningful infrastructure upgrades, generous living space, and proximity to the area's renowned coastline, dining, and outdoor lifestyle.
View MoreCourtesy of
Agency Name: All Water Realty LLC
Agency Phone: 561-575-4554
Agent Name: David L Baker
Presented by
Agent Name: John Casey
Agent Phone: 561.758.3414
Agency Title: The Keyes Company
Request Info
Send an email with a link to
305 Circle E, Jupiter, FL 33458.
Email 305 Circle E, Jupiter, FL 33458
Thank you for your inquiry! As a thank you, we have a Special Mortgage Offer for You.
We would like to provide you a free, no-obligation, home loan pre-approval review.